Plan # 90-90852862
Stylish 2100 sq. ft. 3-Bedroom, 2-Bath Barndominium House Plan with Covered Porch
Experience the perfect mix of comfort, space, and rustic charm with this 2100 sq. ft. barndominium house plan. Featuring 3 spacious bedrooms, 2 full bathrooms, and a beautifully designed covered porch, this home offers everything you need for relaxed country living or modern rural life. With its open-concept layout and thoughtful design, this plan is ideal for families, retirees, or anyone looking to enjoy the simplicity and style of barndominium living.
Our house plan sets typically have the following details:
Customized title block with your name and address.
4 Elevations – Front, Back, Both Sides
Detailed Floor Plan Drawin
Electrical Plans with placements for Mechanical 
Plumbing  Placements
Flooring Plan
Roof PlanBasic Framing PlanMono Slab Foundation Plan
                    Key Features:
- 
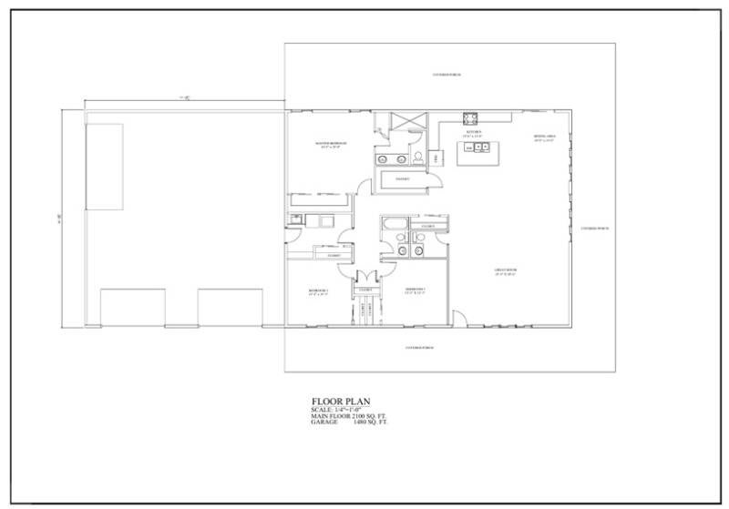
3 Bedrooms & 2 Full Bathrooms: This plan includes a luxurious master suite with a large walk-in closet and private bath, plus two additional bedrooms that are perfect for children, guests, or a home office. The second bathroom is centrally located for convenience.
 - 
2100 Sq. Ft. of Comfortable Living Space: Designed for everyday function and long-term comfort, this barndominium offers plenty of room for both relaxation and entertainment, with wide open spaces and flexible room layouts.
 - 
Expansive Covered Porch: One of the standout features is the covered front porch, perfect for outdoor lounging, greeting guests, or enjoying peaceful mornings with a view. It adds charm, functionality, and outdoor living space you’ll enjoy year-round.
 - 
Open-Concept Design: The kitchen, dining, and living areas flow seamlessly together, creating an inviting space for family time, holiday gatherings, or casual entertaining.
 - 
Modern Kitchen with Center Island: The kitchen includes ample counter space, a large center island for meal prep and seating, and optional upgrades like custom cabinetry and stainless steel appliances.
 - 
Private Master Suite: The master bedroom offers a serene retreat, complete with a private en-suite bathroom featuring double vanities, a walk-in shower, and direct access to a large walk-in closet.
 - 
Functional Utility & Mudroom Space: Designed for real life, this plan includes a practical mudroom/laundry area—perfect for keeping things organized and clean, especially in rural or outdoor settings.
 - 
Energy-Efficient Options: This barndominium floor plan is compatible with energy-saving materials, insulation, and systems to help keep utility costs down while maximizing year-round comfort.
 
                    Why Choose This 2100 sq. ft. Barndominium House Plan?
This 3-bedroom, 2-bath barndominium offers the ideal combination of style, space, and efficiency. The covered porch enhances outdoor living and curb appeal, while the open layout inside provides the comfort and flexibility modern families need. Whether you're building on a rural lot, homestead, or small farm, this design delivers the charm of a farmhouse with the convenience of contemporary living.
Perfect for those seeking a barndominium house plan with a covered porch, open-concept living, and functional space—all within a manageable 2100 square feet.
                    
                    This 2100 SQ FT plan with huge attached shop is perfect for a family.
The shop is 2400 SQ ft ready for all your projects or to park your trucks and equipment.
The benefits of building a Barndominium are:
Cost-Effective – Lower construction and maintenance costs compared to traditional homes
Spacious & Open Layouts – Enjoy high ceilings and flexible floor plans for maximum comfort
Energy Efficiency – Built with durable materials that enhance insulation and reduce utility bills
Customization Options – Easily tailor the design to match your lifestyle and needs
Low Maintenance – Metal exteriors resist weathering, pests, and wear better than conventional homes
Rustic Meets Modern – A perfect blend of country charm and modern living conveniences