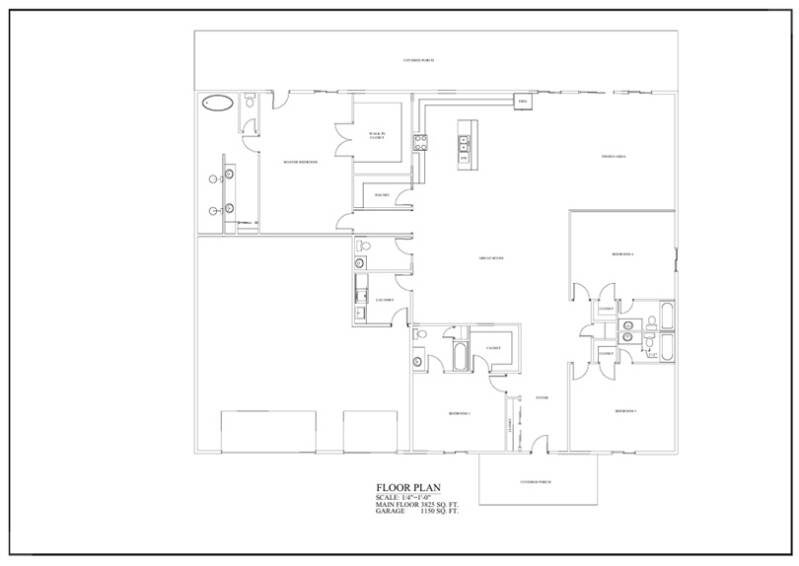
Plan # 82-90852861
4-Bedrooms
3 Bathrooms
Single story
Open concept
Attached 1152 sq ft garage
Back porch
ENSUITE bathrooms
Expansive 3825 sq. ft. One-Story Barndominium House Plan – 3 Bedroom, 2 Bath with Open-Concept Layout and Bonus Space
Discover the ultimate in space and functionality with this impressive 3868 sq. ft. one-story barndominium house plan, featuring 4 bedrooms, 3.5 bathrooms, and a wide-open layout designed for comfort, versatility, and modern country living. Perfect for families, homesteads, or anyone looking to build a spacious dream home, this plan blends rustic barn-inspired charm with today’s most sought-after features—all on a single, easy-to-navigate level.
                    
• With 3686 heated square feet, this home features 4 spacious bedrooms and 3 well-appointed bathrooms, including a convenient ensuite bathrooms.
• The open-concept design seamlessly connects the living, dining, and kitchen areas, creating an inviting atmosphere for family gatherings and entertaining.
• An attached 1152 sq ft garage provides ample space for vehicles and storage.
• Enjoy outdoor living on the back porch, perfect for relaxing or hosting guests. This floor plan offers the ideal combination of comfort, style, and
                    Key Features:
- 
Massive One-Story Layout – 3868 Sq. Ft. of Interior Living Space: Enjoy all the benefits of single-level living without sacrificing space. This expansive floor plan offers room for living, entertaining, storage, and more.
 - 
4 Bedrooms & 3 Full Bathrooms: The master suite includes a large walk-in closet and private en-suite bath with double vanities and a walk-in shower. Two additional bedrooms offer plenty of space for family, guests, or home office use, with a second full bathroom conveniently located.
 - 
Open-Concept Great Room, Kitchen & Dining: At the heart of the home, a massive open living area brings together the kitchen, dining space, and great room under soaring ceilings—ideal for entertaining and everyday family life.
 - 
Gourmet Kitchen with Oversized Island: This kitchen is built to impress, with generous counter space, a large island with seating, walk-in pantry, and options for premium appliances and custom cabinetry.
 - 
Bonus Flex Space: The plan includes additional square footage perfect for a media room, game room, home gym, or workshop—flexibility to customize your home to fit your lifestyle.
 - 
Optional Covered Porch or Patio: Add outdoor living space with a spacious covered porch, perfect for relaxing in the shade, dining outdoors, or enjoying your property views year-round.
 - 
Barndominium Style with Modern Finishes: Metal siding, exposed beams, and barn-style architectural elements give this home timeless curb appeal, while the interior offers sleek, high-end finishes for a modern look.
 - 
Energy-Efficient Design: Built with efficiency in mind, this plan can accommodate energy-saving features such as spray foam insulation, efficient HVAC systems, and insulated metal panels to reduce energy costs.
 
                    Why Choose This 3825 sq. ft. One-Story Barndominium Plan?
This 4-bedroom, 3.5-bath barndominium house plan is ideal for those who want room to spread out, entertain, and live comfortably. With nearly 4,000 square feet of single-level living space, it’s perfect for larger families, multi-use households, or anyone looking for a home that combines rural style with contemporary function.
Whether you’re building on acreage, a farm, or a large lot, this 3825 sq. ft. barndominium plan gives you the flexibility, space, and style to create your forever home.