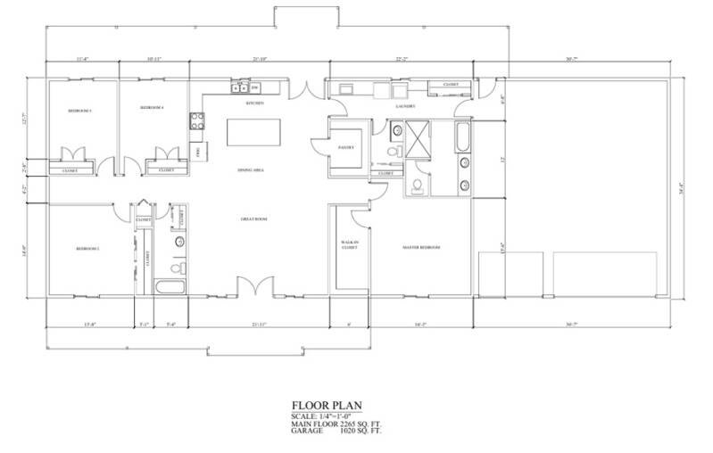
Plan # 61-90852866
- 2265 Heated square feet
 - 34x66 living space dimension
 - 4 Bedrooms
 - 2.1 Bathrooms
 - Open concept
 - 1020 Sq Ft Attached Garage
 - Bonus Room
 - Front and Rear Porch
 
Spacious 2264 sq. ft. One-Story Barndominium House Plan – 3 Bedroom, 2 Bath with Open Floor Plan and Rustic Charm
Step into the comfort and character of this beautifully designed 2264 sq. ft. one-story barndominium house plan, offering 3 bedrooms, 2 bathrooms, and a spacious open-concept layout. Perfect for families, retirees, or anyone who loves modern country living, this floor plan delivers a smart use of space with all the must-have features for today’s lifestyle. With its rustic exterior and modern interior flow, this barndominium combines the best of both worlds.
                    - A thoughtfully designed floor plan that offers 2244 heated square feet of living space. This layout features 4 bedrooms and 2.1 bathrooms, ensuring ample room for a comfortable lifestyle.
 - The 540 sq ft attached garage provides generous space for your vehicles and additional storage. A unique feature of this plan is the bonus room, which can be customized to suit your needs, whether it’s a home office, gym, or a playroom.
 - Adding to the charm of this home are the front and rear porches, providing delightful outdoor spaces for relaxation or entertaining
 
                    Key Features:
- 
One-Story Living – 2265 Sq. Ft. of Functional Space: Enjoy the convenience of single-level living with plenty of room to spread out. This layout is ideal for accessibility and easy maintenance while still offering generous square footage.
 - 
3 Bedrooms & 2 Full Bathrooms: The private master suite includes a large walk-in closet and luxurious en-suite bathroom, while the two additional bedrooms are perfect for children, guests, or home office needs. A second full bath is easily accessible from the main living areas.
 - 
Open-Concept Living Area: A large living room flows effortlessly into the kitchen and dining space, creating a bright, connected environment ideal for entertaining or relaxing with family.
 - 
Modern Kitchen with Island: Featuring a spacious center island, ample counter space, and room for seating, the kitchen is designed to be the heart of the home—perfect for cooking, gathering, and everyday life.
 - 
Optional Covered Porch or Patio: Extend your living space outdoors with a covered porch or patio area (optional), ideal for relaxing in the shade, hosting barbecues, or enjoying peaceful views of your property.
 - 
Barndominium Style with Rustic Appeal: Classic features like metal roofing, board-and-batten siding, and simple rooflines give this home timeless curb appeal, while the interior offers all the comforts of a modern residence.
 - 
Energy-Efficient Build Options: This barndominium house plan supports energy-efficient materials and systems, including upgraded insulation, windows, and HVAC for reduced utility costs and increased comfort.
 
                    
                    Why Choose This 2264 sq. ft. One-Story Barndominium Plan?
This 3-bedroom, 2-bath barndominium is designed for those who want space without complexity. The 2264 sq. ft. layout offers open, flowing living areas, private bedroom zones, and room to grow. Whether you're building your forever home or creating a weekend getaway, this one-story plan is as functional as it is beautiful.
With its combination of rustic exterior style and open-concept modern living, this one-story 2264 sq. ft. barndominium house plan is the perfect choice for those seeking comfort, simplicity, and long-term value.