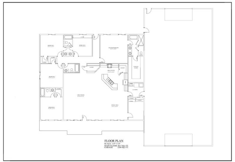
Plan # 60-90852861

 

3,072 Heated Square Feet 50x60 living space dimension

 

 

  • 1 Story
  • 4 Bedrooms
  • 4 Bathrooms
  • Craft Room
  • Office
  • Shop
  • Enjoy the spacious and cozy living in this 3,072 square feet home that is perfect for families who love to entertain and relax in comfort.
  • This one-story home offers convenience and accessibility for all ages and abilities. No stairs to climb, no hassle to move furniture, and no wasted space.
  • This home has four bedrooms that can accommodate your family and guests.
  • This home has four bathrooms that are modern and functional. Each bathroom has a vanity, a toilet, and a shower or a tub.
  • This home has four bathrooms that are modern and functional. Each bathroom has a vanity, a toilet, and a shower or a tub.
  • This home has a craft room that is ideal for your hobbies and projects.
  • This home has an office that is perfect for your work and study needs and also has a door that can be closed for privacy and quietness.
  • This home has a shop that is great for your DIY and repair activities. The shop also has a garage door that can be opened for ventilation and it.

Why Choose This Barndominium House Plan?

This 3072 sq. ft. barndominium house plan offers a unique combination of rustic charm and contemporary functionality. Perfect for those seeking more than just a traditional home, this design emphasizes openness, natural light, and versatile living spaces. Whether you're building on acreage or in a more suburban setting, this barndominium's charming curb appeal and functional layout will make a lasting impression.

Don’t miss out on this incredible opportunity to build the home of your dreams. With its covered porch and spacious living areas, this plan offers a lifestyle of comfort, style, and serenity. Build the perfect home with this modern barndominium design today!

Our house plan sets typically have the following details:

Customized title block with your name and address. 

1. 4 Elevations – Front, Back, Both Sides

2. Detailed Floor Plan Drawing

3. Electrical Plans with placements for Mechanical 

4. Plumbing  Placements

5. Flooring Plan

6. Roof Plan

 

7. Basic Framing Plan

 

8. Mono Slab Foundation Plan