Plan # 50-9085286
Beautiful 1800 sq ft 3-Bedroom, 2-Bath Barndominium with 2400 sq ft Shop/Garage & Covered Porch – The Perfect Blend of Home & Workshop
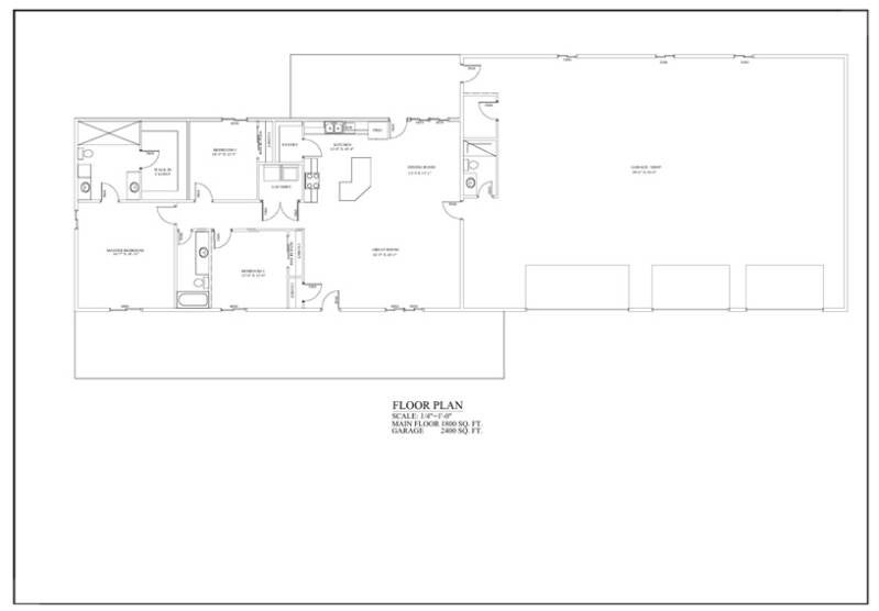
This 1800 sq ft barndominium offers a perfect balance of modern living and functional workspace. Designed with 3 bedrooms and 2 bathrooms, this open-concept floor plan is ideal for families or individuals looking for a spacious home with the added benefit of a 2400 sq ft shop/garage. Whether you’re an entrepreneur, hobbyist, or someone who simply needs extra space for vehicles, tools, or projects, this barndominium provides the ultimate solution.
Why Choose This 1800 sq ft Barndominium with 2400 sq ft Shop/Garage?
- 
3 Bedrooms & 2 Bathrooms: Designed with family living in mind, offering plenty of space and privacy for everyone.
 - 
Open Concept Design: The large living, dining, and kitchen areas create a spacious, welcoming environment for both daily living and entertaining.
 - 
2400 sq ft Shop/Garage: The perfect space for hobbies, a home business, storage, or a workshop. It’s large enough to accommodate vehicles, machinery, and more.
 - 
Covered Porch: An expansive outdoor space perfect for relaxing and entertaining, adding additional living space to the home.
 - 
Private Master Suite: A luxurious retreat with a spa-like en suite bath and spacious walk-in closet.
 - 
Durable Metal Construction: A steel-frame structure provides long-term durability and low maintenance, perfect for a modern, country-inspired home.
 
                    Open Concept Living with Spacious Design
Step inside to discover a welcoming open-concept layout that maximizes space and natural light throughout. The great room serves as the heart of the home, combining the living and dining areas into one inviting space that’s perfect for family gatherings or entertaining friends. High ceilings and large windows provide a feeling of openness, while the sleek, metal-frame construction brings an industrial charm to the design.
The kitchen is a chef’s dream, featuring an oversized island, high-end appliances, ample counter space, and plenty of storage. Whether you're preparing a meal for your family or hosting a dinner party, this kitchen is designed to meet your needs. The open dining area seamlessly connects to the living room, creating a smooth flow between the spaces and making entertaining a breeze.
                    
                    Private Master Suite & Spacious Guest Bedrooms
The master suite is designed to be your personal retreat. It features a spacious layout, complete with a luxurious en suite bathroom that includes a soaking tub, walk-in shower, dual vanities, and a walk-in closet that offers plenty of storage space. It’s the perfect place to unwind after a long day.
Two additional bedrooms are located on the opposite side of the home, providing both privacy and comfort for family members or guests. These rooms share a second full bathroom that features modern fixtures and plenty of space.
                    2400 sq ft Shop/Garage – The Ultimate Workspace
One of the standout features of this barndominium is the 2400 sq ft shop/garage. This massive space provides endless possibilities, whether you need storage for vehicles, equipment, tools, or machinery. It’s also the perfect area for DIY projects, a home business, or a workshop for hobbies and crafts. With its own dedicated entrance, this shop offers convenient access and can be customized to meet a variety of needs.
The shop/garage is designed with durability in mind, featuring high ceilings and a sturdy foundation that can accommodate large vehicles or heavy equipment. The extra space makes it ideal for anyone looking for a home with significant workshop potential.
                    
                    Covered Porch – Enjoy the Outdoors in Comfort
This barndominium features a generous covered porch, extending the living space to the outdoors. Whether you're relaxing with a cup of coffee, hosting a BBQ, or simply enjoying the fresh air, the porch provides an inviting space to unwind. The covered porch also adds a touch of charm to the home, enhancing its curb appeal while providing protection from the elements.
Perfect for year-round enjoyment, the porch provides shade during the warmer months and serves as a cozy spot to enjoy the outdoors, no matter the season.
Our house plan sets typically have the following details:
Customized title block with your name and address.
4 Elevations – Front, Back, Both Sides
Detailed Floor Plan Drawin
Electrical Plans with placements for Mechanical 
Plumbing  Placements
Flooring Plan
Roof PlanBasic Framing PlanMono Slab Foundation Plan
                    "I can't say enough about the outstanding service I received from Tim. His team went above and beyond to meet our needs and exceeded our expectations."
Tom Hartman