Plan # 40-9085286
* 2400 Sq Ft.
* 3 Bedrooms
*2 Bathrooms
* Front and Back Covered Porch
* Big master Walk in Closet
* Open Concept
Discover the unique features of Plan #40-9085286, designed to meet your barndominium dreams. Explore its specifications and understand how it stands out from our other exceptional designs.
This 2400 sq ft barndominium offers the perfect blend of rustic charm and modern convenience. Designed with a 3-bedroom, 2-bath layout, this spacious home provides plenty of room for families, professionals, or anyone looking to embrace the best of country living with a contemporary twist. The standout feature of this barndominium is its expansive wrap-around porch, which provides the perfect setting for outdoor living and entertaining.
One of the most striking features of this barndominium is the front and back porch. This expansive outdoor space stretches along the front and sides of the house, creating a seamless transition between indoor and outdoor living. Whether you're sipping your morning coffee, enjoying a quiet evening, or entertaining guests, the porch provides plenty of space to relax and take in the surrounding landscape. It's the perfect place for family gatherings, outdoor dining, or simply unwinding with a book.
The covered porch not only enhances the home’s curb appeal but also adds functionality, providing protection from the sun and rain, and offering a comfortable space for year-round enjoyment.
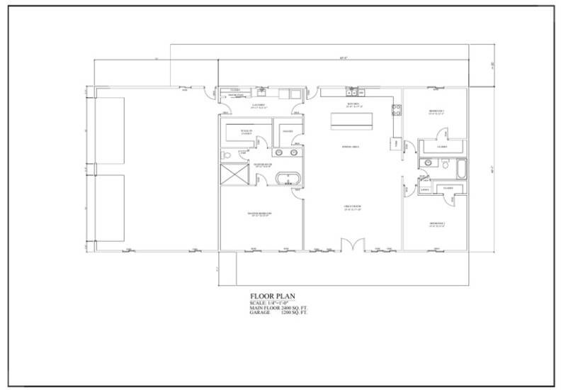
                    This plan Includes 2400 sq. ft. With three spacious bedrooms and two full bathrooms featuring modern fixtures and ample space. The open concept layout seamlessly connects the kitchen, dining, and living areas, making it ideal for effortless entertaining.
• The home also features a practical mudroom, ideal for keeping your home clean and organized, and a charming wraparound porch that provides a lovely outdoor space to enjoy the surroundings.
Step inside to discover a beautifully open-concept design that maximizes space and natural light. The heart of the home is the large great room, which combines the living, dining, and kitchen areas into one airy, flowing space. High ceilings, large windows, and the metal frame structure create an inviting atmosphere that is both modern and practical. Whether you’re hosting friends or enjoying family time, this layout is perfect for a range of activities.
The kitchen is designed for both functionality and style, with an expansive island, high-end appliances, and plenty of storage. It’s the perfect space for cooking, baking, or entertaining guests. The open dining area offers easy access to both the kitchen and the great room, ensuring smooth transitions between spaces
                    The utility room is conveniently located off the garage/shop for easy access and functionality
While a secure closet in the master bedroom ensures your valuables are safely stored. • For those who work from home, the plan includes an office, perfect for managing household affairs.
• Adding to the charm is a cozy fireplace that adds warmth and ambiance to the spacious family room, making it the perfect spot for gatherings and relaxation. • The home also boasts a four-car attached garage, offering plenty of space for vehicles and storage.
Plans Include:
1. Fully Dimensioned Floor Plan
2. Elevation Plan
3. Suggested Electrical Plan
4. Basic framing Plan
5. Basic Foundation Plan
Special Features
The home also features a practical mudroom, ideal for keeping your home clean and organized, and a charming wraparound porch that provides a lovely outdoor space to enjoy the surroundings.