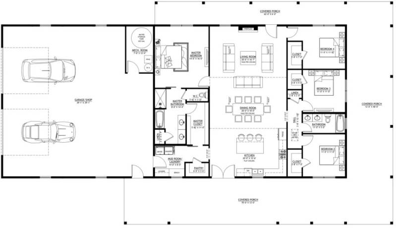
Plan # 19-9085
                    - 2000 Heated Sq Ft
 - 4 Bedrooms
 - 2 Bathrooms
 - Single Story
 - Open concept
 - Mechanical room
 - Wraparound porch
 
                    - Spanning 2000 square feet of heated space, this home offers ample room for comfortable living and entertaining throughout the year.
With four spacious bedrooms, there’s plenty of room for family members, guests. - Enjoy the convenience of two well-appointed bathrooms, making morning routines and evening unwinds a breeze for everyone.
 - The single-story, open-concept layout ensures ease of accessibility and mobility, allowing for easy flow between the living, dining, and kitchen areas and a seamless living experience without the need for stairs.
 - The attached 2-car garage comes with a mechanical room housing a water tank, HVAC system, and water heater, offering convenient and organized storage for essential household systems.
 - A charming wraparound porch invites you to relax and enjoy the outdoors, whether you’re sipping your morning coffee or watching the sunset.
 
                    Need to make changes? Email our modification department. We will get you a free price quote within 72 hours.