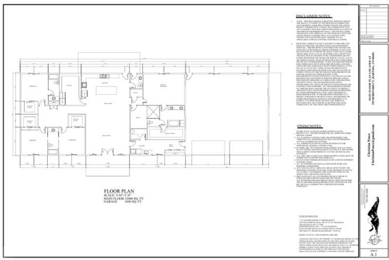
Modern 3200 sq. ft. One-Story Barndominium House Plan – 3 Bedroom, 2 Bath with Open-Concept Layout and Rustic Elegance
This stunning 3200 sq. ft. one-story barndominium house plan offers the perfect combination of wide-open living space, rustic farmhouse charm, and modern amenities. With 4 spacious bedrooms, 3.5 full bathrooms, and an expansive open-concept design, this layout is ideal for families, homesteaders, or those looking to enjoy luxury living in a functional, single-story home. Whether you're building on rural land or customizing your forever home, this plan provides flexibility, efficiency, and timeless style.
Specifications:
• 3.200 Sq Ft
• 4 Beds
• 3.5 Baths
• 1 Stories
• 4 Cars
                    Key Features:
- 
One-Story Design – 3200 Sq. Ft. of Interior Space: Enjoy the ease of single-level living with an open, flowing floor plan designed for comfort, accessibility, and everyday functionality.
 - 
4 Bedrooms & 3.5 Bathrooms: The thoughtfully designed layout includes a private master suite with a large walk-in closet and en-suite bath, plus two spacious guest bedrooms and a second full bathroom conveniently located near shared living areas.
 - 
Expansive Open-Concept Living Area: The central hub of the home features a generous great room that connects seamlessly to the kitchen and dining area, perfect for entertaining, family gatherings, or quiet nights at home.
 - 
Gourmet Kitchen with Large Island: The oversized island offers seating, prep space, and a stylish centerpiece for the kitchen, complemented by ample cabinetry and optional upgrades for custom finishes.
 - 
Optional Covered Porch or Patio: Extend your living space outdoors with a covered front or rear porch—ideal for relaxing, grilling, or enjoying scenic views of your property.
 - 
Rustic-Modern Barndominium Style: Classic barn elements like metal siding, a durable metal roof, and clean rooflines are combined with modern interior finishes to create the ultimate modern farmhouse barndominium.
 - 
Flexible Bonus Spaces: With 3200 square feet, there’s room to add a home office, media room, playroom, or home gym—tailor the space to your lifestyle.
 - 
Energy-Efficient Build: Designed to support eco-friendly construction, this plan includes options for high-efficiency insulation, HVAC systems, windows, and smart home upgrades.
 
                    • 3,200 spacious and cozy heated Sq Ft offering a perfect balance for living, relaxing, and entertaining.
• Generous space to park your cars and store everything from tools to outdoor gear in the 1290 Sq ft 2-car garage.
• With 4 Bedrooms, enough room for family, guests, and a slice of privacy for everyone.
• The 3.5  bathrooms are designed for convenience, with extra space to keep morning routines hassle-free.
• Single Story for accessible and easy to navigate, and the open concept design seamlessly connects spaces where conversations and creativity flow.
• The mechanical room keeps things practical and organized, keeping your utilities in one neat spot.
                    Why Choose This 3200 sq. ft. One-Story Barndominium Plan?
This 4-bedroom, 3.5-bath barndominium floor plan is ideal for anyone seeking a blend of luxury, space, and down-to-earth comfort. With its open-concept layout, generous room sizes, and flexible design, this home suits a variety of needs—from growing families to empty nesters looking for a spacious retreat. The one-story design makes it both accessible and practical for all stages of life.