Plan # 13-90852863
Stylish 2000 sq. ft. One-Story Barndominium House Plan – 3 Bedroom, 2 Bath with Open-Concept Layout
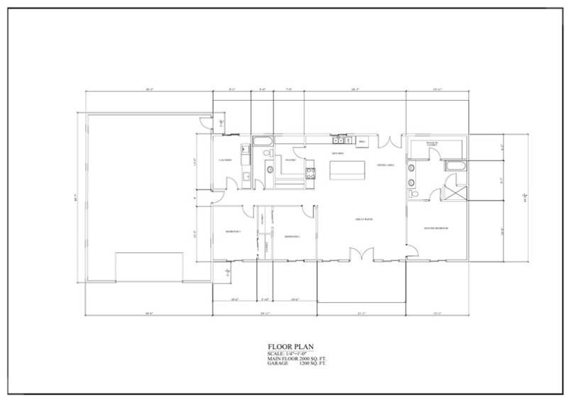
This 2000 sq. ft. one-story barndominium house plan is designed for those who want the perfect balance of comfort, efficiency, and rustic charm. With 3 spacious bedrooms, 2 full bathrooms, and a wide-open layout, this barndominium offers everything you need for relaxed living in a modern farmhouse style. Whether you're building in the country, on a large lot, or planning your dream homestead, this plan combines functionality with eye-catching curb appeal.
                    Key Features:
- 
One-Story, 2000 Sq. Ft. Layout: Easy, accessible living all on one level with plenty of space for families, retirees, or anyone seeking a low-maintenance home design.
 - 
3 Bedrooms & 2 Full Bathrooms: The well-planned layout includes a private master suite with an en-suite bath and walk-in closet, plus two additional bedrooms ideal for kids, guests, or a home office.
 - 
Open-Concept Design: The kitchen, dining, and living areas flow seamlessly together, creating an open, airy space perfect for entertaining or relaxing with family.
 - 
Modern Kitchen with Center Island: A spacious kitchen with ample counter space, an oversized island with seating, and room for custom finishes—ideal for cooking and gathering.
 - 
Optional Covered Porch: Extend your living area outdoors with a covered front or rear porch (optional), perfect for relaxing, enjoying the view, or entertaining guests.
 - 
Rustic Barndominium Aesthetic: Features like a metal roof, board-and-batten siding, and exposed beams offer a timeless, rural-inspired design with modern comforts.
 - 
Energy-Efficient Options: Designed with sustainability in mind, this plan supports energy-efficient insulation, windows, HVAC systems, and other eco-friendly upgrades.
 
                    As you step inside, you’ll find a generous great room, where the living area, dining space, and kitchen seamlessly blend together. Large windows allow natural light to flood the interior, emphasizing the sense of openness.
- This spacious floor plan offers five bedrooms and 2.5 bathrooms. The master suite features its own private bathroom. Additionally, residents benefit from a shared bathroom and a half bathroom in the shop area adds practicality.
 - This floor plan features a spacious 39’ x 29’ shop, providing ample room for various activities. With its generous dimensions, you can set up anything to suit your needs.
 - Adjacent to the shop, you’ll find a practical 39’ x 25’ 2-car garage, comfortably accommodating two vehicles. It’s not only functional but also convenient for protecting your cars from the elements. The extra width allows for easy maneuvering and additional storage
 
                    
                    
                    Why Choose This 2000 sq. ft. Barndominium House Plan?
This 3-bedroom, 2-bath barndominium is ideal for anyone who wants a well-rounded, attractive, and efficient living space. The one-story design makes it accessible for all ages, while the open-concept floor plan and optional covered porch enhance livability and charm. Whether you're starting fresh, downsizing, or creating your forever home, this plan is a smart, stylish, and functional choice.