Plan # 10-9085286

 

2300 Sq. Ft. 3-befroom 3 bath

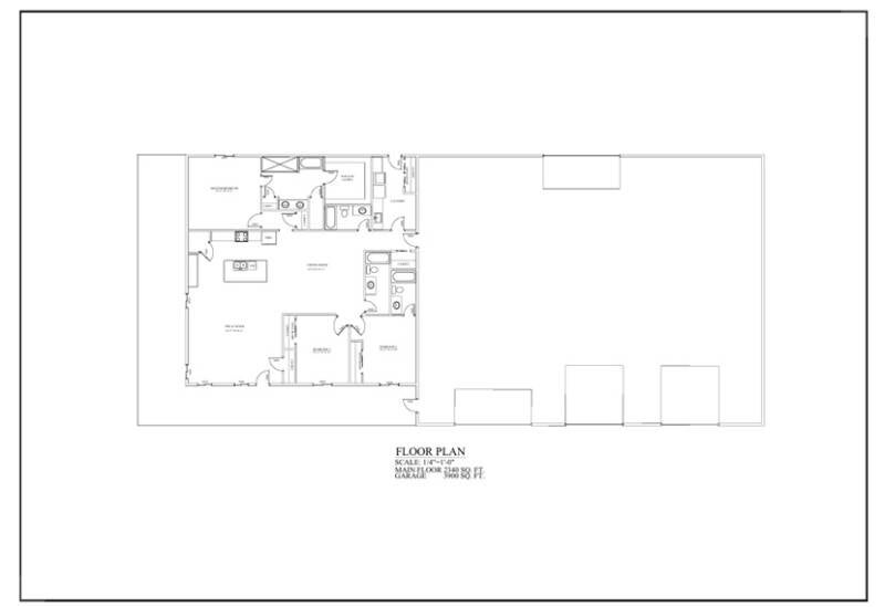
  • This plan includes 3 bedroom 2 bath and huge attached shop
  • 2344 Heated square feet
  • 48x50 living space dimension
  • 3 Bedrooms
  • 3 Bathrooms
  • Single story
  • Open concept
  • Attached 4029 sq ft garage
  • Front porch
  • Patio

Why Choose This Barndominium House Plan?

This 2300 sq. ft. barndominium house plan offers a unique combination of rustic charm and contemporary functionality. Perfect for those seeking more than just a traditional home, this design emphasizes openness, natural light, and versatile living spaces. Whether you're building on acreage or in a more suburban setting, this barndominium's charming curb appeal and functional layout will make a lasting impression.

Don’t miss out on this incredible opportunity to build the home of your dreams. With its covered porch and spacious living areas, this plan offers a lifestyle of comfort, style, and serenity. Build the perfect home with this modern barndominium design today!

Our house plan sets typically have the following details:

Customized title block with your name and address. 

1. 4 Elevations – Front, Back, Both Sides

2. Detailed Floor Plan Drawing

3. Electrical Plans with placements for Mechanical 

4. Plumbing  Placements

5. Flooring Plan

6. Roof Plan

 

7. Basic Framing Plan

 

8. Mono Slab Foundation Plan

 

 

  • Step into this stunning single-story residence boasting 2344 heated square feet of luxurious living space.
  • With 3 spacious bedrooms and 3 modern bathrooms, this home is designed for comfort and convenience.

Discover the perfect blend of modern living and rustic charm with this spacious 2300 sq. ft. barndominium house plan. Featuring 3 bedrooms and 3 bathrooms, this open-concept home is designed to meet the needs of families, retirees, or anyone seeking a comfortable yet stylish living space. With its expansive layout and thoughtful design, this plan is perfect for those who want a unique home with all the conveniences of modern living.

 

  • Enjoy the outdoors from your charming front porch or relax on the cozy patio.
  • The attached 4029 sq ft garage offers ample space for vehicles and storage, making it ideal for car enthusiasts or those needing extra room for hobbies.

Discover the perfect blend of modern living and rustic charm with this spacious 2300 sq. ft. barndominium house plan. Featuring 3 bedrooms and 3 bathrooms, this open-concept home is designed to meet the needs of families, retirees, or anyone seeking a comfortable yet stylish living space. With its expansive layout and thoughtful design, this plan is perfect for those who want a unique home with all the conveniences of modern living.